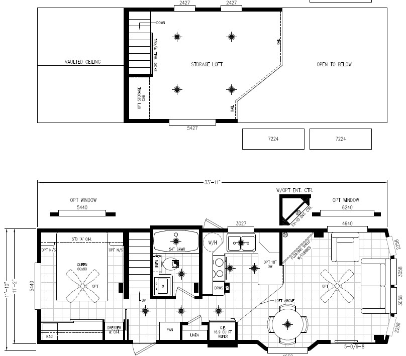
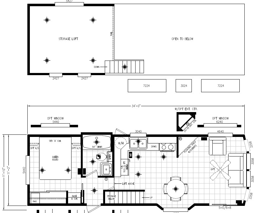
Alpine Loft
1 Bed
1 Bath
399 sq ft
1 Bed / 1 Bath with multiple floor plans. Large loft space and front porch. Park model that can be used as an ADU depending on local codes.
No items found.
No items found.
Floor Plan
1 Bed
1 Bath
399 sq ft
*All steps handled by
Your new home in less than 6 months

Step 2
Customize home
Our homes can be modified to meet your needs.

Step 3
Obtain permits
We can handle the entire permitting process for you.

Step 4
Build
Homes are factory built and delivered to your site.







